グランソロ(東京都 墨田区)
グランソロ掲載開始のお知らせ、ご希望条件の新着物件など、最新情報をお知らせいたします!
グランソロは掲載が終了しております
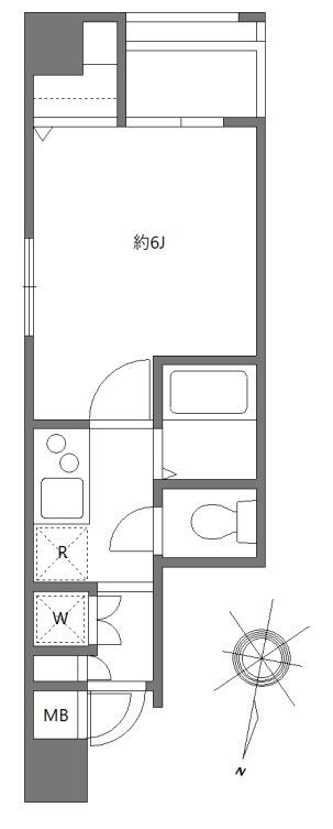
東京都 墨田区にあるグランソロの不動産詳細情報
| 住所 | 東京都墨田区東向島五丁目3-9 |
|---|---|
| アクセス |
東武伊勢崎線東向島駅 徒歩2分 東武伊勢崎線京成曳舟駅 徒歩10分 |
| 築年月 | 2009年06月(築8年) |
グランソロにそっくりな物件はこちら
墨田区の賃貸物件をお探しの方はこちら
理想の物件が見つからない方へ
理想の住まい探し、プロにまかせてみませんか?
・希望条件の物件が見つからない・ローンはどう組めばいいの?など
あなたのお悩みまるっと無料で相談に乗らせていただきます。
物件の売却を検討されている方へ
会員登録のご案内
新着物件・条件に合う物件をメールでお知らせします!
不動産会社のご担当社様へ
物件掲載随時受付中です。
掲載ご希望の方は、こちらよりお問い合わせください。
掲載ご希望の方は、こちらよりお問い合わせください。