プレシーザ本駒込(東京都 文京区)
プレシーザ本駒込掲載開始のお知らせ、ご希望条件の新着物件など、最新情報をお知らせいたします!
プレシーザ本駒込は掲載が終了しております
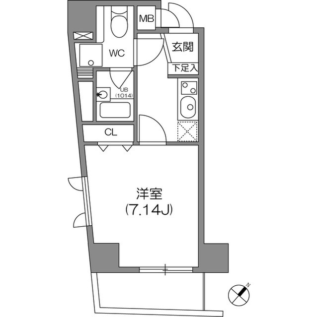
東京都 文京区にあるプレシーザ本駒込の不動産詳細情報
| 参考査定価格 |
706万円〜1,279万円 (坪単価:144〜150万円/坪) |
|---|---|
| 住所 | 東京都文京区本駒込五丁目59-5 |
| アクセス |
山手線駒込駅 徒歩7分 |
| 築年月 | 1993年02月(築24年) |
| 共用施設 |
RC構造 / 宅配ボックス / 駐輪場あり
|
| 部屋の基本設備 |
インターネット利用可 / オートロック / ペット相談可 / ルーフバルコニー
|
| 参考査定価格 |
|
プレシーザ本駒込にそっくりな物件はこちら
文京区の賃貸物件をお探しの方はこちら
文京区の不動産会社一覧
理想の物件が見つからない方へ
理想の住まい探し、プロにまかせてみませんか?
・希望条件の物件が見つからない・ローンはどう組めばいいの?など
あなたのお悩みまるっと無料で相談に乗らせていただきます。
物件の売却を検討されている方へ
会員登録のご案内
新着物件・条件に合う物件をメールでお知らせします!
不動産会社のご担当社様へ
物件掲載随時受付中です。
掲載ご希望の方は、こちらよりお問い合わせください。
掲載ご希望の方は、こちらよりお問い合わせください。