根岸コーワハイツ(東京都 台東区)
根岸コーワハイツ掲載開始のお知らせ、ご希望条件の新着物件など、最新情報をお知らせいたします!
根岸コーワハイツは掲載が終了しております
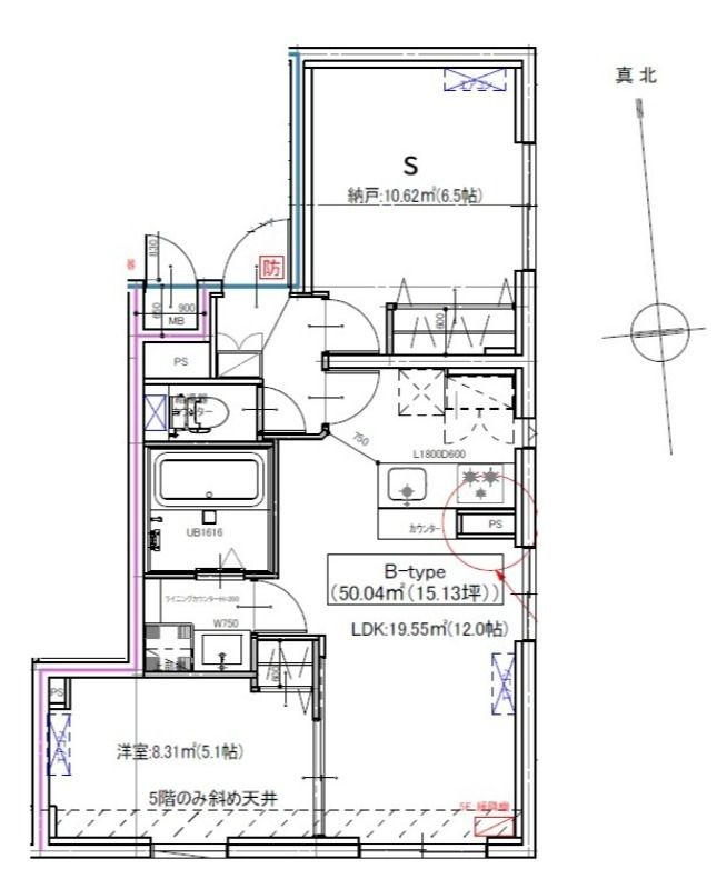
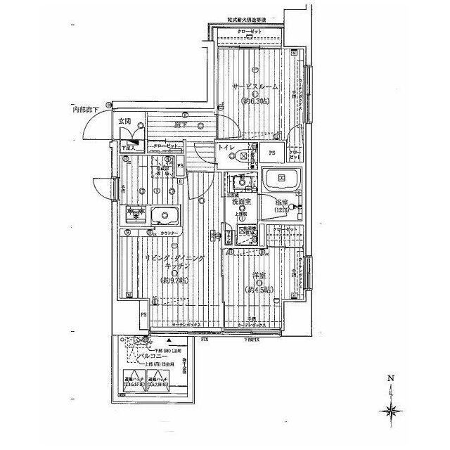
東京都 台東区にある根岸コーワハイツの不動産詳細情報
| 住所 | 東京都台東区根岸五丁目17-4 |
|---|---|
| アクセス |
日比谷線三ノ輪駅 徒歩3分 日比谷線三ノ輪橋駅 徒歩6分 日比谷線荒川一中前駅 徒歩8分 日比谷線荒川区役所前駅 徒歩10分 |
| 築年月 | 1989年04月(築28年) |
根岸コーワハイツにそっくりな物件はこちら
台東区の賃貸物件をお探しの方はこちら
台東区の不動産会社一覧
理想の物件が見つからない方へ
理想の住まい探し、プロにまかせてみませんか?
・希望条件の物件が見つからない・ローンはどう組めばいいの?など
あなたのお悩みまるっと無料で相談に乗らせていただきます。
物件の売却を検討されている方へ
会員登録のご案内
新着物件・条件に合う物件をメールでお知らせします!
不動産会社のご担当社様へ
物件掲載随時受付中です。
掲載ご希望の方は、こちらよりお問い合わせください。
掲載ご希望の方は、こちらよりお問い合わせください。