葵シャトー(東京都 千代田区)
葵シャトー掲載開始のお知らせ、ご希望条件の新着物件など、最新情報をお知らせいたします!
葵シャトーは掲載が終了しております
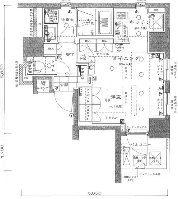
東京都 千代田区にある葵シャトーの不動産詳細情報
| 住所 | 東京都千代田区麹町五丁目5-1 |
|---|---|
| アクセス |
中央本線(東京~塩尻)四ツ谷駅 徒歩4分 中央本線(東京~塩尻)麹町駅 徒歩5分 中央本線(東京~塩尻)半蔵門駅 徒歩10分 中央本線(東京~塩尻)市ケ谷駅 徒歩10分 |
| 築年月 | 1964年07月(築53年) |
葵シャトーにそっくりな物件はこちら
千代田区の賃貸物件をお探しの方はこちら
千代田区の不動産会社一覧
理想の物件が見つからない方へ
理想の住まい探し、プロにまかせてみませんか?
・希望条件の物件が見つからない・ローンはどう組めばいいの?など
あなたのお悩みまるっと無料で相談に乗らせていただきます。
物件の売却を検討されている方へ
会員登録のご案内
新着物件・条件に合う物件をメールでお知らせします!
不動産会社のご担当社様へ
物件掲載随時受付中です。
掲載ご希望の方は、こちらよりお問い合わせください。
掲載ご希望の方は、こちらよりお問い合わせください。