アルテシモ大森(東京都 大田区)
アルテシモ大森掲載開始のお知らせ、ご希望条件の新着物件など、最新情報をお知らせいたします!
アルテシモ大森は掲載が終了しております
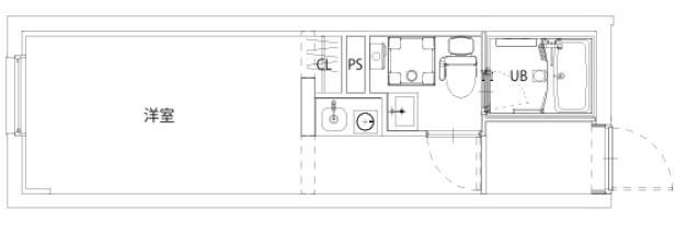
東京都 大田区にあるアルテシモ大森の不動産詳細情報
| 参考査定価格 |
1,387万円〜2,192万円 (坪単価:194〜236万円/坪) |
|---|---|
| 住所 | 東京都大田区大森東二丁目16-10 |
| アクセス |
京急本線大森町駅 徒歩3分 京急本線平和島駅 徒歩9分 |
| 築年月 | 2006年05月(築11年) |
| 共用施設 |
RC構造 / TVモニター付きインターホン / 宅配ボックス / 駐車場あり / 駐輪場あり
|
| 部屋の基本設備 |
BS/CS対応 / インターネット利用可 / オートロック / 温水洗浄便座 / システムキッチン / バス、トイレ別 / ペット相談可 / 浴室乾燥機 / ルーフバルコニー / エアコン完備
|
| 参考査定価格 |
|
アルテシモ大森にそっくりな物件はこちら
大田区の賃貸物件をお探しの方はこちら
大田区の不動産会社一覧
理想の物件が見つからない方へ
理想の住まい探し、プロにまかせてみませんか?
・希望条件の物件が見つからない・ローンはどう組めばいいの?など
あなたのお悩みまるっと無料で相談に乗らせていただきます。
物件の売却を検討されている方へ
会員登録のご案内
新着物件・条件に合う物件をメールでお知らせします!
不動産会社のご担当社様へ
物件掲載随時受付中です。
掲載ご希望の方は、こちらよりお問い合わせください。
掲載ご希望の方は、こちらよりお問い合わせください。