亀戸センタープラザ(東京都 江東区)
亀戸センタープラザ掲載開始のお知らせ、ご希望条件の新着物件など、最新情報をお知らせいたします!
亀戸センタープラザは掲載が終了しております
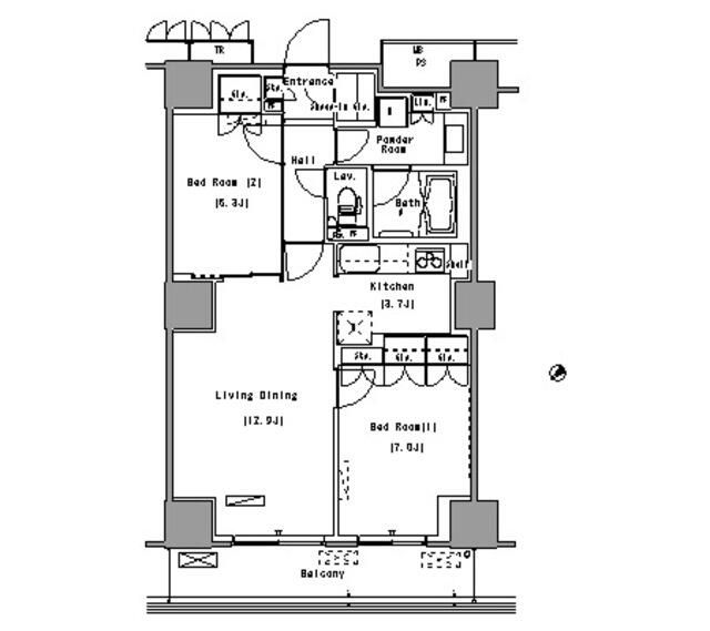
東京都 江東区にある亀戸センタープラザの不動産詳細情報
| 参考査定価格 |
3,787万円 (坪単価:132万円/坪) |
|---|---|
| 住所 | 東京都江東区亀戸五丁目30-3 |
| アクセス |
総武線亀戸駅 徒歩4分 総武線亀戸水神駅 徒歩6分 |
| 築年月 | 1982年02月(築35年) |
| 共用施設 |
駐輪場あり
|
| 部屋の基本設備 |
インターネット利用可 / 温水洗浄便座 / システムキッチン / バス、トイレ別 / ペット相談可 / ルーフバルコニー
|
| 参考査定価格 |
|
亀戸センタープラザにそっくりな物件はこちら
江東区の賃貸物件をお探しの方はこちら
江東区の不動産会社一覧
理想の物件が見つからない方へ
理想の住まい探し、プロにまかせてみませんか?
・希望条件の物件が見つからない・ローンはどう組めばいいの?など
あなたのお悩みまるっと無料で相談に乗らせていただきます。
物件の売却を検討されている方へ
会員登録のご案内
新着物件・条件に合う物件をメールでお知らせします!
不動産会社のご担当社様へ
物件掲載随時受付中です。
掲載ご希望の方は、こちらよりお問い合わせください。
掲載ご希望の方は、こちらよりお問い合わせください。