会員登録のご案内
新着物件・条件に合う物件をメールでお知らせします!
東海住宅株式会社 本店
3,180万円
千葉県千葉市中央区花輪町
外房線鎌取駅 徒歩35分
京成千原線大森台駅 徒歩32分
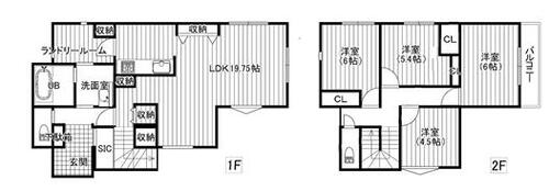
4LDK / 105.15㎡(専有面積)
2022年1月(築4年)
■2022年築美築住戸■南向きの道路幅6m♪
| 物件名 |
千葉市中央区花輪町
|
|---|---|
| 所在地 |
千葉県千葉市中央区花輪町
|
| 交通 |
外房線鎌取駅 徒歩35分
京成千原線大森台駅 徒歩32分 |
| 築年月 |
2022年1月(築4年)
|
| 価格 | 3,180万円 | 管理/共益費 | - |
|---|---|---|---|
| 修繕積立金 | - | 修繕積立基金 | - |
| 間取り | 4LDK |
専有面積 | 105.15㎡ |
|---|---|---|---|
| バルコニー | 主要採光面 | 南 |
| 物件種別 | 中古戸建 | 建物構造 | 木造 |
|---|---|---|---|
| 総戸数 | 1戸 | 所在階/建物階建 | 階 / 地上2階建て |
| 現況 | 引渡/入居時期 | 即時 | |
|---|---|---|---|
| 管理 | 管理形態: 自主管理 |
土地権利 | 所有権 |
| 土地面積 | 131.18㎡ | ||
| 接道 | 接道状況: 一方
|
||
| その他制限 | 地目: 宅地
|
||
| 担当者コメント | ●所要時間の目安● ■現地物件見学(60分〜) ■物件探しのご相談(30分〜) ■資金計画のご相談(45分〜) ■不動産売買のポイントと注意点のご説明(60分〜) ■その他のご相談(30分〜) ※しつこい売り込みはありません。安心してお問い合わせください ■現地ご案内■ ・現地にスタッフはおりませんので、事前にご予約ください ・土日以外のご案内も可能です。平日や遅い時間もご相談ください ■ご案内方法■ ・ご自宅へお迎え・最寄り駅等でお待ち合わせ、弊社へのご来社など、ご希望をお伝えください ・周辺環境、ご希望条件に沿った別物件のご案内も可能です ・チャイルドシートのご用意がございますので、お子様もご一緒にお越しください ■ご来店について■ ・店舗のすぐ近くにお客様駐車場をご用意しております。 ・キッズスペースやおむつ替え台、授乳スペースがございますので、安心してご来店ください。 |
|---|---|
| 備考 | 駐車場:空有 ●頭金0円から購入可♪気になる物件まとめご案内可能です! 弊社が掲載していない物件でもOK♪ ●現地集合&現地解散でちょっとだけ見たい!大歓迎です♪ |
| 掲載期限日 | 2026/05/11 |
|---|---|
| 情報更新日 | 2026/04/27 |
| キッチン |
ガスコンロ / 食器洗い乾燥機 / 浄水器・活水器 / IHコンロ / カウンターキッチン
|
|---|---|
| セキュリティ |
モニタ付インターホン
|
| 設備・サービス |
エアコンつき / バルコニー / バス・トイレ別 / 温水洗浄便座 / シャワー付洗面化粧台 / 独立洗面台 / 追焚機能 / 浴室乾燥機
|
| 共用 |
駐車場あり
|
| 周辺 |
南道路 / 平坦地
|
| その他 |
即入居可 / 現地内覧可能 / 所有権 / 南向き / 複層ガラス / フローリング / LDK15畳以上 / 照明器具付
|
| ライフライン |
公営水道 / 下水 / 都市ガス / 給湯
|
アクセス
外房線鎌取駅 徒歩35分
京成千原線大森台駅 徒歩32分
| 東海住宅株式会社 本店 |
|
|---|