中古戸建 東戸塚 (神奈川県横浜市保土ケ谷区)

物件概要
  • 3,680万円

  • 神奈川県横浜市保土ケ谷区法泉二丁目

  • 横須賀線東戸塚駅 バス12分 今井町下車 徒歩6分
    横須賀線保土ケ谷駅 バス14分 今井橋下車 徒歩9分
    相鉄線二俣川駅 バス28分 今井橋下車 徒歩9分

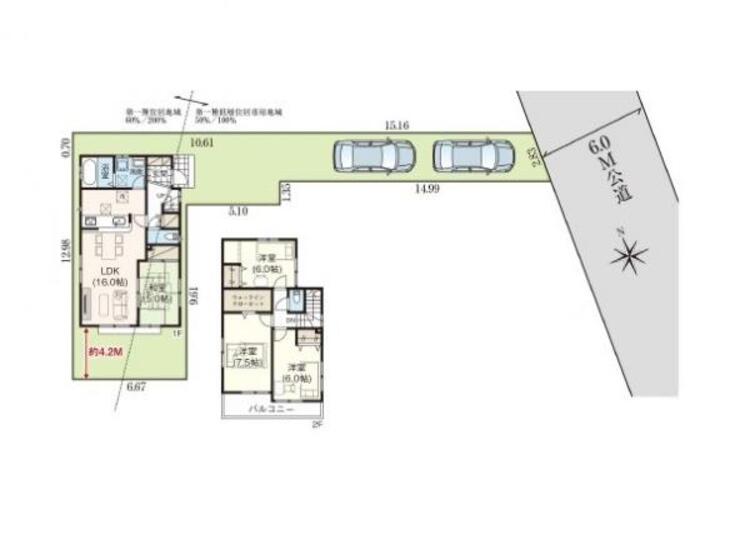
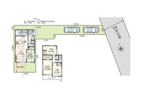
  • 4LDK / 96.05㎡(専有面積)
    2013年3月(築12年)

    • 駐車場あり
お気に入り
↓もっと詳しい情報をもらう
お問い合わせする(無料)
毎月のお支払いの目安
合計額98,251円
  • ローンの目安98,251円
  • 管理費-
  • 修繕積立金-
※ローンの目安額は[頭金ゼロ、借入年数35年、都市銀行・変動金利0.666%]を想定。こちらは目安額であり実際の借り入れ・融資を保証するものではなく、審査内容により、融資の一部または全部をご利用頂けない場合がございますので予めご了承ください。
より詳しいシミュレーションはこちら
月額ローンの
シミュレーションをする

不動産会社からのおすすめポイント

【JR横須賀線「東戸塚」駅利用!中古戸建・4LDK】 2階全居室6帖以上なので、ご家族それぞれがお家時間を満喫できる間取りです◎ WICなど豊富な収納完備のため、生活空間をゆったりと使えます♪ カースペース2台分完備(車種による)◎前面道路6m以上なので車の出し入れがしやすく開放感があります☆

この物件について
PROPERTY DETAIL

詳細情報DETAIL INFORMATION

物件の設備・条件PROPERTY EQUIPEMENT

間取り情報FLOOR PLAN INFORMATION

中古戸建 東戸塚の間取り

リフォーム

キッチン、浴室、トイレ | 2025年09月完了

床(フローリング等) | 2025年09月完了

アクセスACCESS

住所
神奈川県横浜市保土ケ谷区法泉二丁目

アクセス

横須賀線東戸塚駅 バス12分 今井町下車 徒歩6分

横須賀線保土ケ谷駅 バス14分 今井橋下車 徒歩9分

相鉄線二俣川駅 バス28分 今井橋下車 徒歩9分

中古物件購入をご検討の方へ

新しい住まいの選択肢、知っていますか?

中古物件+リノベーション

アイランドキッチンがいいな!将来のことを考えて子ども部屋は2つ作りたい!
など、中古物件をリノベーションすることで、間取りも自由に、細かいところまで自分らしくこだわれます。
そして、中古物件+リノベーションはその他にもメリットがたくさんあります。
是非中古物件+リノベーションという選択肢も視野に入れて、不動産会社にご相談してみてください。
リノベーションの3つのメリット
  1. おトク

    新築より低コスト

  2. 便利

    好立地の物件が豊富

  3. 夢叶う

    自由にデザイン可能

取り扱い不動産会社 REALTORS INFORMATION

朝日土地建物株式会社 横浜支店の特徴

PR FEATURES

”マイホームの夢”現実の「感動」をお客様と共に味わいたい。その為に私たちは走り続けます。        ☆新鮮な情報と豊富な物件量

このエリアで扱っている物件の情報量です。当社は東京・神奈川で13店舗展開中。1店舗15名~40名の営業マンが在籍しており、毎日新しい物件情報を求めて大勢の営業マンが毎日物件収集をしています。たくさんの情報の中から、良い物件や最新の物件を揃えることができます。

☆お客様のライフスタイルに合わせた       適切なアドバイス ☆私たちのプロ意識

インターネットなどで物件検索が可能になり、お客様の情報量は圧倒的に多くなりますが、かえって整理ができなくなってしまいどの物件が一番自分にふさわしいのか判断がつかなくなってしまうことが多い様です。

お客様に対しての的確な情報提供と情報整理も私達の大切な役割です。物件を案内して、「この物件はいかがですか?」と尋ねるだけでは本当のプロとはいえません。これではお客様ご自身だけで物件を見に行くのと同じになってしまいます。

当社の営業マンは、その物件の良いところの話をするだけではなく、悪いところや、お客様が気づかない点なども積極的にアドバイスさせていただきます。日々情報収集を行い、たくさんの物件を見ているからこそできる当社営業マンの強みです。また、お客様のご希望、諸々の条件など考慮し、様々な観点でご提案・アドバイスをさせていただきます。

お客様の立場に立って、ともに悩み、考え、行動することによってお客様からの信頼を得るのが「プロの仕事」だと私達は考えます。
お客様に「ありがとう。あなたから買って良かった」と言っていただけることが
私たちの一番の喜びです。

横浜エリアの不動産探しは、横浜駅西口から徒歩3分の朝日土地建物 横浜店にお任せください。

朝日土地建物 横浜店では、JR東海道線・JR横須賀線・JR京浜東北・根岸線・東急東横線・京浜急行本線・相模鉄道線・ブルーライン・みなとみらい線・その他、横浜市を中心とした不動産物件をご紹介させていただいております。バザール会場(店舗)は横浜駅西口から徒歩3分の好立地。小さなお子様がいらっしゃるお客様にもゆっくり過ごしていただけるよう、キッズルームもご用意しております。不動産ご購入だけでなく、横浜エリアの一戸建て物件を中心に、売却物件を募集しております。お気軽に、お見積りやご相談においでください。また、Web未公開の物件も多数ございます。ご希望に沿う物件をお探し致しますので、お気軽にご相談下さい!また、お客様用の駐車場がございます。ご利用に際しては、事前にお電話等でご連絡下さい。ご来場を社員一同、心よりお待ちしております。

☆☆朝日土地建物ではお買い替えもご相談可能です☆☆                          ◆◆◆住まいの相談会開催中◆◆◆

----------お住み替え相談会開催中------------
~ご自宅の査定+お住み替えローン審査を無料~
~複雑なお手続きを分かりやすくご説明~
・自己資金0でも大丈夫?
・購入・売却どっちを先にすればいい?
・どうやって進めるのが一番良いか?などなど・・・
┌──────────────────  
|■朝日土地建物の住み替え応援サポート
└──────────────────
▽買い取り保証サービス ・・・確実な売却が可能です。
▽即時買い取りサービス ・・・売却活動なしの売却が可能。
▽住み替えローン ・・・残債額が残っていても買い替え可能です。
▼朝日土地建物は無料査定・売却相談受付中です。
フリーダイヤル 0120-72-4311

中古戸建 東戸塚の条件に近い物件一覧はこちら

理想の物件が見つからない方へ

理想の住まい探し、プロにまかせてみませんか?

希望条件の物件が見つからない
ローンはどう組めばいいの?など
あなたのお悩みまるっと無料で相談に乗らせていただきます。
Loan introduction link

会員登録のご案内

新着物件・条件に合う物件をメールでお知らせします!
pagetop