所沢市中新井4丁目 中古一戸建て (埼玉県所沢市)

物件概要
  • 4,480万円

  • 埼玉県所沢市中新井四丁目

  • 西武新宿線新所沢駅 バス7分 ニュータウン中央下車 徒歩4分

  • 3SLDK / 136.63㎡(専有面積)
    2006年2月(築19年)

お気に入り
↓もっと詳しい情報をもらう
お問い合わせする(無料)
毎月のお支払いの目安
合計額119,610円
  • ローンの目安119,610円
  • 管理費-
  • 修繕積立金-
※ローンの目安額は[頭金ゼロ、借入年数35年、都市銀行・変動金利0.666%]を想定。こちらは目安額であり実際の借り入れ・融資を保証するものではなく、審査内容により、融資の一部または全部をご利用頂けない場合がございますので予めご了承ください。
より詳しいシミュレーションはこちら
月額ローンの
シミュレーションをする

不動産会社からのおすすめポイント

平成18年築/カースペース3台分(車種制限有)/東側歩道のため陽当良好/閑静な住宅地

この物件について
PROPERTY DETAIL

詳細情報DETAIL INFORMATION

物件の設備・条件PROPERTY EQUIPEMENT

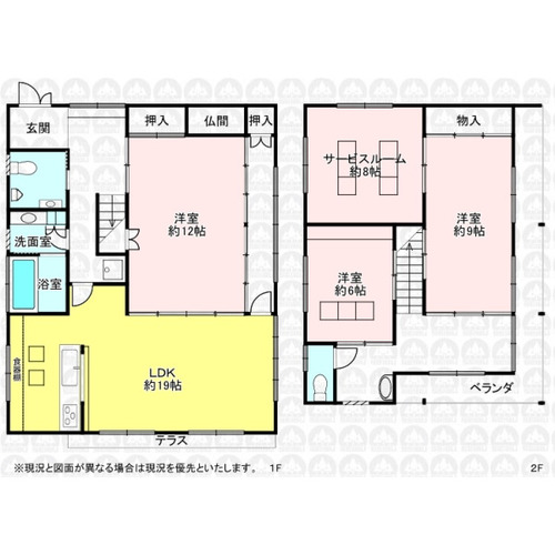
間取り情報FLOOR PLAN INFORMATION

所沢市中新井4丁目 中古一戸建ての間取り

アクセスACCESS

住所
埼玉県所沢市中新井四丁目

アクセス

西武新宿線新所沢駅 バス7分 ニュータウン中央下車 徒歩4分

取り扱い不動産会社 REALTORS INFORMATION

株式会社西武開発 新所沢店の特徴

PR FEATURES

本社社屋

「地元のために、お客様のために。」

私たち西武開発のモットーは「安全取引」。創業以来変わらないスタンスで、地域に貢献できる住環境のご提供におります。目指したのは、お客様からも、他の不動産業者からも信用が得られる、頼りになる存在。
また、西武開発の広告は営業スタッフ自らが作成、実際に目で見て確かめた情報を使用しております。その為、お問い合わせいただいた際もスムーズにご案内できます。
これからもお客様にとって一番のご住宅をご紹介できるよう、きめ細かなサービスを心がけてまいります。

西武新宿線「新所沢駅」より徒歩3分。 駐車場も完備。

アクセスのよい新所沢駅から徒歩3分の立地。店内はお客様がゆっくり安心してお打合せができるよう、キッズスペースも完備しております。
所沢エリアを中心に、周辺エリアを熟知したスタッフが、誠心誠意ご対応させて頂きます。

1人の専任アドバイザーがお客様を終始一貫サポート!

理想のマイホームを見つけるには、ご年収などの情報のほか、お客様が住まいに対して抱く想いなど、プライベートな部分をお聞かせいただくことになります。ですので、お客様と担当スタッフとの信頼関係が、何より大事。
西武開発では、お問い合わせいただいた際の担当スタッフが、お客様専任のアドバイザーとして、お住まい探しからご契約、住宅ローンの手続き、お引き渡しに関する様々なサポート、そしてアフターフォローに至るまで、一貫してサポートさせていただきます。
創業以来から続く、こだわりのサービスです。

西武開発のインスペクション(中古住宅建物診断)&瑕疵保証サービス「売却あんしんプラス」

「売却あんしんプラス」ならお引渡し後に隠れた瑕疵が見つかっても保証がつくので、売主様も買主様も安心して中古住宅の売買ができます。詳細は、お客様ご担当のアドバイザーよりご案内させていただきます。
中古住宅売買の不安を安心に変える。
家を売る時も買う時も、西武開発におまかせください!

所沢市中新井4丁目 中古一戸建ての条件に近い物件一覧はこちら

理想の物件が見つからない方へ

理想の住まい探し、プロにまかせてみませんか?

希望条件の物件が見つからない
ローンはどう組めばいいの?など
あなたのお悩みまるっと無料で相談に乗らせていただきます。
Loan introduction link

会員登録のご案内

新着物件・条件に合う物件をメールでお知らせします!
pagetop