西戸山タワーホウムズセントラルタワー(1501) (東京都新宿区)

物件概要
  • 10,800万円

  • 東京都新宿区百人町三丁目1-4

  • 山手線新大久保駅 徒歩6分
    山手線高田馬場駅 徒歩9分
    総武中央線大久保駅 徒歩9分

  • 2SLDK / 79.77㎡(専有面積)
    1988年1月(築37年)

    • オートロック
    • エレベーター
    • 駅から近い
お気に入り
↓もっと詳しい情報をもらう
お問い合わせする(無料)
毎月のお支払いの目安
合計額331,135円
  • ローンの目安288,347円
  • 管理費20,481円
  • 修繕積立金22,307円
※ローンの目安額は[頭金ゼロ、借入年数35年、都市銀行・変動金利0.666%]を想定。こちらは目安額であり実際の借り入れ・融資を保証するものではなく、審査内容により、融資の一部または全部をご利用頂けない場合がございますので予めご了承ください。
より詳しいシミュレーションはこちら
月額ローンの
シミュレーションをする

不動産会社からのおすすめポイント

◆ ◆ 【無料】 見学予約 受付中 ◆ ◆

この物件について
PROPERTY DETAIL

詳細情報DETAIL INFORMATION

物件の設備・条件PROPERTY EQUIPEMENT

間取り情報FLOOR PLAN INFORMATION

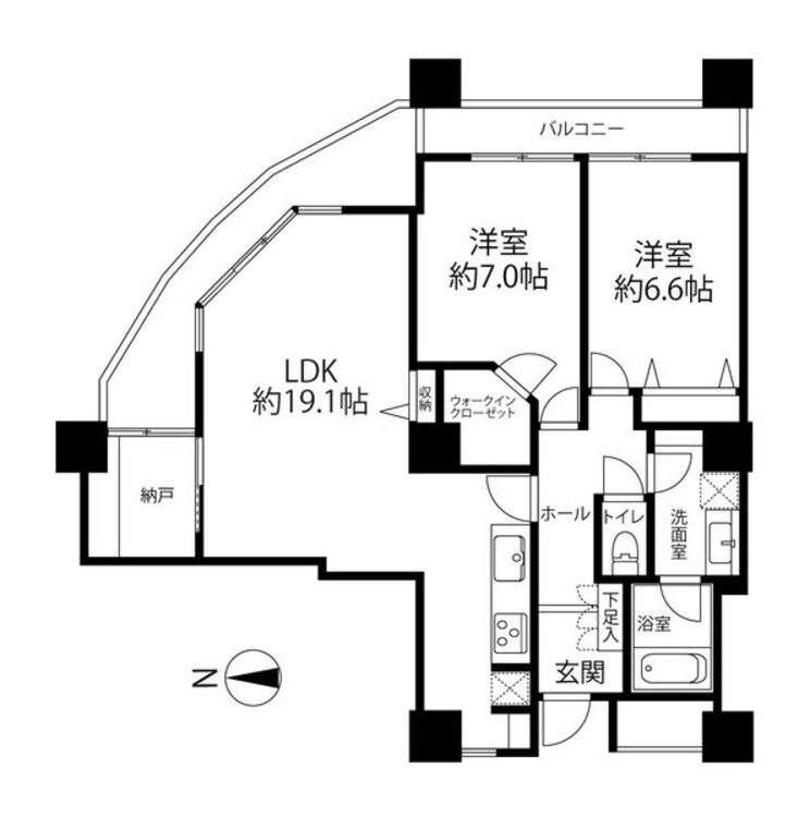
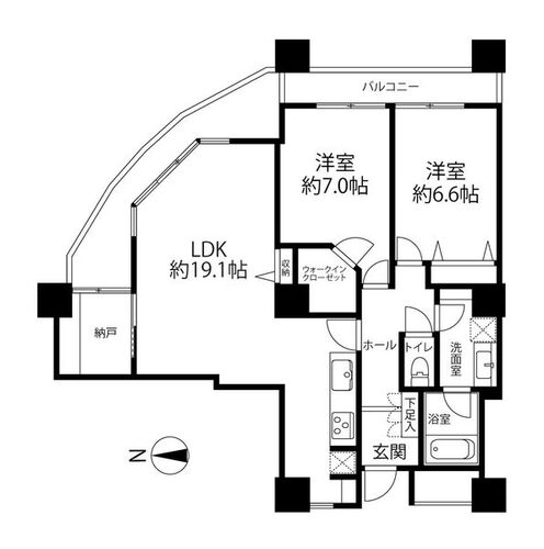
西戸山タワーホウムズセントラルタワー(1501)の間取り

リノベーション

2025年06月完了

水回り設備交換:キッチン・浴室・トイレ内装リフォーム:壁・床・全室

リフォーム

キッチン、浴室、トイレ、洗面所 | 2025年06月完了

壁、天井(クロス、塗装等)、全室クロス張替、床(フローリング等)、建具(室内ドア等) | 2025年06月完了

アクセスACCESS

住所
東京都新宿区百人町三丁目1-4

アクセス

山手線新大久保駅 徒歩6分

山手線高田馬場駅 徒歩9分

総武中央線大久保駅 徒歩9分

中古物件購入をご検討の方へ

新しい住まいの選択肢、知っていますか?

中古物件+リノベーション

アイランドキッチンがいいな!将来のことを考えて子ども部屋は2つ作りたい!
など、中古物件をリノベーションすることで、間取りも自由に、細かいところまで自分らしくこだわれます。
そして、中古物件+リノベーションはその他にもメリットがたくさんあります。
是非中古物件+リノベーションという選択肢も視野に入れて、不動産会社にご相談してみてください。
リノベーションの3つのメリット
  1. おトク

    新築より低コスト

  2. 便利

    好立地の物件が豊富

  3. 夢叶う

    自由にデザイン可能

取り扱い不動産会社 REALTORS INFORMATION

株式会社WAKUWAKU リノベ不動産|恵比寿南店の特徴

PR FEATURES

◆ ◆ ◆ 物件見学 予約 受付中 ◆ ◆ ◆

現地見学会(事前に必ずお問い合わせください)
日程/随時
時間/10:00~17:00
■□■□■□■□■□■□■□■□■□■□■□■□
【現地見学会開催】
ゆっくりご見学いただく為、1組ずつご案内させていただいております。
※事前に必ずご予約をお願いいたします。(当日予約可能です。)
平日でもご案内は可能です。

【見学受付窓口】
TEL:0037-6008-0441 通話無料 / 携帯・PHS可
※現地見学会は無料です。お気軽にお問い合わせください。
■□■□■□■□■□■□■□■□■□■□■□■□

【オリジナル ブレンド COFFEE】プレゼント

お問い合せで、当社オリジナルブレンドコーヒーをプレゼント!
※お問合せ時に住所をご記載ください。

コーヒーのおいしさは90%豆の質で決まります。当店は世界中から厳選した3種の豆を黄金比でブレンド。

中古+リノベのように、淹れてから時間が経ったほうが味わい深くなる魔法のようなコーヒーに仕上がりました。

お家でゆっくりお召し上がりください。

当社オリジナルブレンドコーヒー
こんなパンフレットが届きます

ミノリノだけではわからない物件の詳細な情報や、最新の物件情報がもらえます!

【無料】サービスブック・スタイルブック
『中古購入+リノベーション』の専門店、“リノベ不動産”のサービス、リノベーション事例写真をギュギュっと詰め込んだオリジナル資料をお届けいたします。※ご希望者のみ

2020年度「中古仲介+リノベーション」ワンストップサービス市場シェアNo.1

2020年度「中古仲介+リノベーション」のワンストップサービス市場において年間455億円を達成、市場シェアの37.6%を獲得し、No.1を獲得。

西戸山タワーホウムズセントラルタワー(1501)の条件に近い物件一覧はこちら

理想の物件が見つからない方へ

理想の住まい探し、プロにまかせてみませんか?

希望条件の物件が見つからない
ローンはどう組めばいいの?など
あなたのお悩みまるっと無料で相談に乗らせていただきます。
Loan introduction link

会員登録のご案内

新着物件・条件に合う物件をメールでお知らせします!
pagetop