朝日土地建物株式会社 横浜支店
4,980万円
神奈川県横浜市港北区綱島西二丁目
東横線綱島駅 徒歩10分
東急新横浜新綱島駅 徒歩11分
東横線大倉山駅 徒歩31分
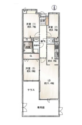
3LDK / 75.04㎡(専有面積)
1990年11月(築35年)
現地見学予約はお気軽にお電話ください♪♪ お客さまにココロから「住んでよかった」と 実感して頂けるよう 良質な住まいを幅広く皆さまにお届けしたい ◆しあわせは理想の住まいから◆ 住宅は実物を見てから購入したいもの。 それができるのが中古住宅です。 現地に出向くことで建物の外観・採光・風通し・眺望などを 確認し、実際にその空間を肌で感じることができます。 また、周辺環境や建物の管理状況なども確認できるので、そこに暮らす自分の姿を具体的にイメージでき、 納得してから購入を決断できるという安心感があります♪ 現地見学のご予約はメール又はお電話ください♪♪♪
| 物件名 |
綱島シティハウス
|
|---|---|
| 所在地 |
神奈川県横浜市港北区綱島西二丁目
|
| 交通 |
東横線綱島駅 徒歩10分
東急新横浜新綱島駅 徒歩11分 東横線大倉山駅 徒歩31分 |
| 築年月 |
1990年11月(築35年)
|
| 価格 | 4,980万円 | 管理/共益費 | 20,200円 |
|---|---|---|---|
| 修繕積立金 | 12,160円 | 修繕積立基金 | - |
| 間取り | 3LDK |
専有面積 | 75.04㎡ |
|---|---|---|---|
| バルコニー | 無 | 主要採光面 | 南 |
| 物件種別 | 中古マンション | 建物構造 | RC(鉄筋コンクリート) |
|---|---|---|---|
| 総戸数 | 21戸 | 所在階/建物階建 | 1階 / 地下1階建て 地上4階建て |
| 現況 | 空家 | 引渡/入居時期 | 相談 |
|---|---|---|---|
| 管理 | 管理形態: 全部委託
|
土地権利 | 所有権 |
| その他制限 | 用途地域: 第一種住居地域
|
||
| 担当者コメント | -物件見学のご予約- ご希望があれば周辺環境もご案内をいたします。 ■ご予約方法 受付: メールの場合:【資料請求】ボタンをクリック♪ 人気物件には特に問い合わせが集中するため、お早めにお電話ください。 「室内・現地を見学する」ボタンよりご予約いただくとご見学がスムーズです 【コロナウイルス予防対策実施中】 ・ご入店時の検温とアルコール除菌を設置しております。 ・接客ブースでは、お席の間隔を通常より広くお取りします。 ・全営業車に乗降車時の消毒、除菌シート等を常備しております。 ・物件見学用に使い捨てスリッパ・使い捨て手袋をご用意します。 【ご相談しやすい環境】 ・弊社は『横浜駅』から徒歩3分、隙間時間でご来店いただけます。 ・DVDやおもちゃのあるキッズスペースがございますのでお子様連れでもお気兼ねなく!授乳室やおむつ交換室も備えております。 |
|---|---|
| 備考 | 駐車場:空有 駐車場月額: 22,000円 〇ここが大事!! 周辺の教育施設やスーパー、ドラックストア等の情報、災害情報「物件レポート」をお渡します! 〇他の物件と併せてご案内もOK! 〇ご自宅や指定場所から無料送迎もOK! 〇当日見学もOK! 〇店舗前面はガラス張りで明るく開放的な接客スペース♪ 外からは見えにくい場所にも個別相談ができる商談スペースがありご相談等は無料で行っております どんなことでも相談できる朝日土地建物へどうぞ!!!! |
| 掲載期限日 | 2025/12/19 |
|---|---|
| 情報更新日 | 2025/12/05 |
| キッチン |
システムキッチン
|
|---|---|
| 設備・サービス |
バス・トイレ別 / 温水洗浄便座 / シャワー付洗面化粧台 / 独立洗面台 / 洗濯機置き場(有) / 浴室乾燥機 / 全居室収納
|
| 共用 |
駐車場あり / エレベーター
|
| 周辺 |
2沿線以上利用可(複数路線)
|
| その他 |
所有権 / 南向き / 1階 / フローリング / LDK15畳以上
|
| ライフライン |
その他インターネット / BS・CS・CATV / 公営水道 / 下水 / 都市ガス
|
アクセス
東横線綱島駅 徒歩10分
東急新横浜新綱島駅 徒歩11分
東横線大倉山駅 徒歩31分
新しい住まいの選択肢、知っていますか?
中古物件+リノベーション
アイランドキッチンがいいな!将来のことを考えて子ども部屋は2つ作りたい!新築より低コスト
好立地の物件が豊富
自由にデザイン可能
| 朝日土地建物株式会社 横浜支店 |
|
|---|
朝日土地建物株式会社 横浜支店の特徴
このエリアで扱っている物件の情報量です。当社は東京・神奈川で13店舗展開中。1店舗15名~40名の営業マンが在籍しており、毎日新しい物件情報を求めて大勢の営業マンが毎日物件収集をしています。たくさんの情報の中から、良い物件や最新の物件を揃えることができます。
インターネットなどで物件検索が可能になり、お客様の情報量は圧倒的に多くなりますが、かえって整理ができなくなってしまいどの物件が一番自分にふさわしいのか判断がつかなくなってしまうことが多い様です。
お客様に対しての的確な情報提供と情報整理も私達の大切な役割です。物件を案内して、「この物件はいかがですか?」と尋ねるだけでは本当のプロとはいえません。これではお客様ご自身だけで物件を見に行くのと同じになってしまいます。
当社の営業マンは、その物件の良いところの話をするだけではなく、悪いところや、お客様が気づかない点なども積極的にアドバイスさせていただきます。日々情報収集を行い、たくさんの物件を見ているからこそできる当社営業マンの強みです。また、お客様のご希望、諸々の条件など考慮し、様々な観点でご提案・アドバイスをさせていただきます。
お客様の立場に立って、ともに悩み、考え、行動することによってお客様からの信頼を得るのが「プロの仕事」だと私達は考えます。
お客様に「ありがとう。あなたから買って良かった」と言っていただけることが
私たちの一番の喜びです。
朝日土地建物 横浜店では、JR東海道線・JR横須賀線・JR京浜東北・根岸線・東急東横線・京浜急行本線・相模鉄道線・ブルーライン・みなとみらい線・その他、横浜市を中心とした不動産物件をご紹介させていただいております。バザール会場(店舗)は横浜駅西口から徒歩3分の好立地。小さなお子様がいらっしゃるお客様にもゆっくり過ごしていただけるよう、キッズルームもご用意しております。不動産ご購入だけでなく、横浜エリアの一戸建て物件を中心に、売却物件を募集しております。お気軽に、お見積りやご相談においでください。また、Web未公開の物件も多数ございます。ご希望に沿う物件をお探し致しますので、お気軽にご相談下さい!また、お客様用の駐車場がございます。ご利用に際しては、事前にお電話等でご連絡下さい。ご来場を社員一同、心よりお待ちしております。
----------お住み替え相談会開催中------------
~ご自宅の査定+お住み替えローン審査を無料~
~複雑なお手続きを分かりやすくご説明~
・自己資金0でも大丈夫?
・購入・売却どっちを先にすればいい?
・どうやって進めるのが一番良いか?などなど・・・
┌──────────────────
|■朝日土地建物の住み替え応援サポート
└──────────────────
▽買い取り保証サービス ・・・確実な売却が可能です。
▽即時買い取りサービス ・・・売却活動なしの売却が可能。
▽住み替えローン ・・・残債額が残っていても買い替え可能です。
▼朝日土地建物は無料査定・売却相談受付中です。
フリーダイヤル 0120-72-4311