朝日土地建物株式会社 八王子支店
4,450万円
東京都日野市栄町二丁目
中央線日野駅 徒歩9分
多摩モノレール甲州街道駅 徒歩24分
八高線小宮駅 徒歩29分
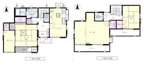
3LDK / 102.34㎡(専有面積)
1995年9月(築30年)
■南道路に面しており、全室南向き!陽当たり良好 ■JR中央線「日野」駅徒歩9分。都心のベッドタウンとして便利なエリア ■駐車スペース1台完備!コンビニ迄徒歩5分でちょっとしたお買い物やお仕事帰りに便利
| 物件名 |
日野市栄町2丁目
|
|---|---|
| 所在地 |
東京都日野市栄町二丁目
|
| 交通 |
中央線日野駅 徒歩9分
多摩モノレール甲州街道駅 徒歩24分 八高線小宮駅 徒歩29分 |
| 築年月 |
1995年9月(築30年)
|
| 価格 | 4,450万円 | 管理/共益費 | - |
|---|---|---|---|
| 修繕積立金 | - | 修繕積立基金 | - |
| 間取り | 3LDK |
専有面積 | 102.34㎡ |
|---|---|---|---|
| バルコニー | 主要採光面 | 南 |
| 物件種別 | 中古戸建 | 建物構造 | 軽量鉄骨造 |
|---|---|---|---|
| 総戸数 | 1戸 | 所在階/建物階建 | 階 / 地上2階建て |
| 現況 | 空家 | 引渡/入居時期 | 相談 |
|---|---|---|---|
| 管理 | 管理形態: 自主管理 |
土地権利 | 所有権 |
| 土地面積 | 公簿 147.79㎡ | ||
| 私道負担 | 有 111.52㎡ 持分: 1 / 5 | ||
| 接道 | 接道状況: 一方
|
||
| その他制限 | 地目: 宅地
|
||
| 担当者コメント | この物件は中央線の「日野」駅から徒歩9分というアクセスの良さと、静かな住宅街にあるという絶妙なバランスを」持っています。 周辺にはスーパーやコンビニが500m圏内にあり、買い物や日常の生活に便利な環境が整っています。近くに谷地川が流れており河川敷をお散歩やジョギングが出来ます。加賀塚公園も徒歩5分、他にも公園が多数点在していますので自然との共存が可能、自然と都市の利便性を兼ね備えた場所といえるでしょう。 システムキッチン 浴室に窓 フローリング 和室 床下収納 各室収納スペース バルコニー 2面バルコニー 閑静な住宅街 陽当り良好 平坦地 南道路 整形地 洗浄便座 独立洗面台 トイレ2ヶ所 追焚き給湯 照明器具 南向き 全室南向き バス1坪以上 |
|---|---|
| 備考 | 駐車場:空有 ■物件のご紹介 事前にご希望条件等を教えてくだされば、掲載物件以外の周辺物件情報も 多数ご紹介が可能です。お問い合わせメールに箇条書きでかまいませんので (お探しのエリア・ご予算・ご希望間取りなど)をお知らせください ———【住宅ローン事前無料相談会開催中!】——— ・日程:随時見学可能 ・開催時間:10:00〜 ■ご予約方法 ・受付: ・メールの場合:【資料請求】ボタンをクリックでお問い合わせください。 事前に鍵の手配や売主様とスケジュールの調整が必要な物件がございます お早目にご連絡をいただけるとご案内がスムーズです |
| 掲載期限日 | 2026/05/17 |
|---|---|
| 情報更新日 | 2026/05/03 |
| キッチン |
ガスコンロ / IHコンロ / システムキッチン
|
|---|---|
| 設備・サービス |
バルコニー / 温水洗浄便座 / 独立洗面台 / 追焚機能 / 床下収納 / 全居室収納
|
| 共用 |
駐車場あり
|
| 周辺 |
南道路 / 平坦地 / 2沿線以上利用可(複数路線)
|
| その他 |
所有権 / 南向き / フローリング / 照明器具付
|
| ライフライン |
公営水道 / 下水 / 都市ガス
|
アクセス
中央線日野駅 徒歩9分
多摩モノレール甲州街道駅 徒歩24分
八高線小宮駅 徒歩29分
| 朝日土地建物株式会社 八王子支店 |
|
|---|
朝日土地建物株式会社 八王子支店の特徴
東京都・神奈川県・埼玉県に13店舗展開している朝日土地建物は、創業1985年・ご成約件数5万件の安心と実績で、お客様のお住まい探しを全力でサポートいたします!
20:00まで営業しておりますので、お仕事帰りにもお気軽にお立ち寄りください!
店内の棚にある住まい情報はご自由にご覧いただけます。
新築・中古・売地・マンションの種別、八王子、日野市などのエリア別に整理されています。
物件の詳細はスタッフにおたずね下さい。
「いくら位の住まいが購入できるか」「ローンの借入の年数はどのくらいか」「毎月の返済額はどのくらいになるか」などの目安を立て、お客様のご希望に沿ったプランのご提案をいたします。
キッズスペースも完備しておりますので、小さなお子様連れのお客様も安心してご来店いただけます。
ご興味を持たれた物件がございましたら現地へご案内いたします。住まい選びにはフィーリングも大切です。現地の空気や雰囲気を感じてみましょう。