目黒区中目黒5丁目RCレジデンス (東京都目黒区)

物件概要
  • 20,980万円

  • 東京都目黒区中目黒五丁目

  • 東横線祐天寺駅 徒歩12分
    東横線中目黒駅 徒歩15分

  • / 184.11㎡(専有面積)
    2007年7月(築18年)

    • 駐車場あり
お気に入り
↓もっと詳しい情報をもらう
お問い合わせする(無料)
毎月のお支払いの目安
合計額560,141円
  • ローンの目安560,141円
  • 管理費-
  • 修繕積立金-
※ローンの目安額は[頭金ゼロ、借入年数35年、都市銀行・変動金利0.666%]を想定。こちらは目安額であり実際の借り入れ・融資を保証するものではなく、審査内容により、融資の一部または全部をご利用頂けない場合がございますので予めご了承ください。
より詳しいシミュレーションはこちら
月額ローンの
シミュレーションをする

東急東横線「祐天寺」駅 徒歩12分

都心でありながら、下町の風情も残す、人情の温かな街。お洒落なカフェも多い印象♪夜遅くまで開いているスーパーやコンビニなど、買い物に困らないのが嬉しいポイントです。

東急東横線「中目黒」駅 徒歩15分

日比谷線、東急東横線が走っており、都内はもちろん、横浜方面へもアクセスしやすい♪有名なフレンチ、イタリアン、和食などのお店が多数あり、テレビ等でも頻繁に取り上げられるエリアです!

なべころ坂緑地公園 徒歩5分(約400m)

東京都立目黒高校 徒歩8分(約600m)

不動産会社からのおすすめポイント

■中目黒アドレスに佇むRCレジデンス(自宅用、賃貸併用、一棟収益可)
■希少な建物面積180㎡超えの耐震・遮音に優れた3階建

◆◆◆自社リノベーションブランドCue studioの設計施工も承ります◆◆◆
URL:https://www.balleggs.com/

□□□バレッグスの特徴□□□
東急沿線を中心に、城南エリアに特化した10店舗展開!!
創業から30年を経て売買仲介・不動産仕入・賃貸仲介・賃貸管理・リノベーション・設計・施工と多角的に展開しております。
城南エリアの不動産オーナー様と長いお付き合いをして得られた情報を惜しみなく提供しております。

□□□ その他□□□
■ご案内ご希望/資料のご請求はお気軽に!
■営業時間:10:00~18:00

この物件について
PROPERTY DETAIL

詳細情報DETAIL INFORMATION

物件の設備・条件PROPERTY EQUIPEMENT

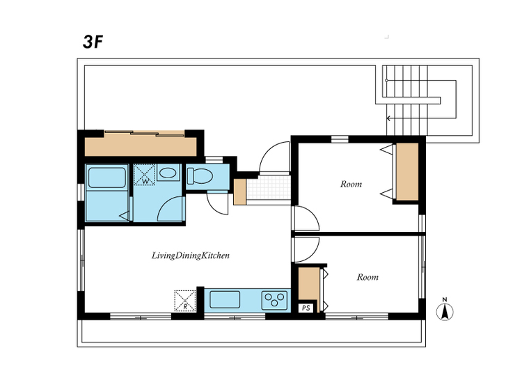
間取り情報FLOOR PLAN INFORMATION

目黒区中目黒5丁目RCレジデンスの間取り

アクセスACCESS

住所
東京都目黒区中目黒五丁目

アクセス

東横線祐天寺駅 徒歩12分

東横線中目黒駅 徒歩15分

電話お問い合わせ希望

0037-6008-8384

通話無料 / 携帯・PHS可

株式会社バレッグス 学芸大学本店(売買営業部)

営業時間:10:00〜18:30 / 定休日: 火曜日・水曜日

住所:東京都目黒区鷹番二丁目5-21 / 物件管理番号:202602020002 / 専属専任媒介

免許番号:東京都知事(8)第62730号

加盟団体:一般社団法人 不動産流通経営協会

株式会社バレッグス 学芸大学本店(売買営業部)の特徴

PR FEATURES

バレッグスの不動産仲介へのこだわり

インターネットの時代になり、お客様にとって「物件の情報提供」に対する価値はあまり高くないと考えています。

一方、税務、宅建業法、民法等の知識やその他不動産取引に付随するノウハウや様々なリスクに対する事前情報に対する価値は高いと考えています。

分からないものや目にみえないものに対する不安は計り知れませんし、高額な取引が故に聞きかじりで失敗すると取り返しが付かないからです。

そのようなことも含めて、不動産取引を通じて売主様や買主様に安心、安全な取引を提供するために事前にご提案することが真のサービスと考えています。

そして当然、取引後のアフターフォローも重要なサービスです。最終的にはお客様に気持よく、ご満足のいただけるお手伝いをご提供させて頂くことを最大の使命と考えています。

”不動産”のプロフェッショナルが担当します。

私たちが目指しているものは、売買営業という切り口から、一人一人の顧客のライフプランに合わせた情報を提供できる、真の『コンサルティング』サービスです。

私たちの部署に所属するスタッフは、全員が売買だけではなく賃貸や管理等、不動産に欠かせない情報を、知識だけではなく、経験として積んできているコンサルタントです。

そんな中、不動産業界の競合他社はいまだに一貫した特化戦略を取っています。賃貸は賃貸。売買は売買。といったように、社内では完全に分業化が進められており、すべての業務に精通したプロフェッショナルは業界的にもかなり稀です。

私たちだからこそ、真の『コンサルティング』サービスを提供できると自負しております。

デザインリノベーションをワンストップでご提供できます。

デザインリノベーションを提供するCuestudio(キュースタジオ)とタッグを組み、物件探しからリノベーションのご提案までシームレスに対応が可能です。

工事からお引き渡しまで、ひとつの窓口でお任せいただけ、物件購入、資金計画、設計・施工、お引渡し、アフターサービスを一環してサポート、設計・施工を全て自社で行い、担当コンサルタントが各セクションと連携を取りながらお施主様一人ひとりの窓口となって、常に品質の高い住まいのご提供を目指しています。

「リノベしたら終わり」ではなく、「リノベしてから始まる」そんな未来のイメージを大事にし、ずっと身近な存在であり続けたいと考えています。

目黒区中目黒5丁目RCレジデンスの条件に近い物件一覧はこちら

理想の物件が見つからない方へ

理想の住まい探し、プロにまかせてみませんか?

希望条件の物件が見つからない
ローンはどう組めばいいの?など
あなたのお悩みまるっと無料で相談に乗らせていただきます。
Loan introduction link

会員登録のご案内

新着物件・条件に合う物件をメールでお知らせします!
pagetop