朝日土地建物株式会社 八王子支店
3,580万円
東京都八王子市千人町一丁目
中央線西八王子駅 徒歩7分
中央線八王子駅 徒歩29分
京王高尾線山田駅 徒歩29分
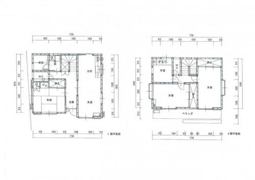
4LDK / 92.05㎡(専有面積)
2003年1月(築23年)
◆中央線【西八王子駅】徒歩7分 ◆生活施設が整い利便性に優れた立地 ◆駐車スペース1台完備、南7mx西4mの角地で車の出し入れも楽々 ◆敷地面積85m2以上、南向き住宅で、陽光と幸せな日々。
| 物件名 |
八王子市千人町
|
|---|---|
| 所在地 |
東京都八王子市千人町一丁目
|
| 交通 |
中央線西八王子駅 徒歩7分
中央線八王子駅 徒歩29分 京王高尾線山田駅 徒歩29分 |
| 築年月 |
2003年1月(築23年)
|
| 価格 | 3,580万円 | 管理/共益費 | - |
|---|---|---|---|
| 修繕積立金 | - | 修繕積立基金 | - |
| 間取り | 4LDK |
専有面積 | 92.05㎡ |
|---|---|---|---|
| バルコニー | 主要採光面 | 南 |
| 物件種別 | 中古戸建 | 建物構造 | 木造 |
|---|---|---|---|
| 総戸数 | 1戸 | 所在階/建物階建 | 階 / 地上2階建て |
| 現況 | 空家 | 引渡/入居時期 | 相談 |
|---|---|---|---|
| 管理 | 管理形態: 自主管理 |
土地権利 | 所有権 |
| 土地面積 | 公簿 87.84㎡ | ||
| 私道負担 | 有 0.92㎡ 持分: 1 / 2 | ||
| 接道 | 接道状況: 二方(角地)
|
||
| その他制限 | 地目: 宅地
|
||
| 担当者コメント | 中央線「西八王子」駅まで徒歩7分で通勤通学に便利なエリアに位置する、敷地面積85平米以上の南西角地物件です。2面採光で日当たり良好、明るく開放的な室内空間が広がります。南側は公道に面しており、車の出し入れもスムーズ。駐車スペース1台分確保済みでマイカー派にも安心です。都市ガス利用で経済的、ライフラインも充実。保育園、幼稚園、小学校が徒歩8分以内なので、お子様をもつ家庭も安心して育むことができます。周辺にはスーパーやドラッグストアなど商業施設が多数あり、日々の生活も快適です。利便性と住環境のバランスが取れたおすすめの物件です。 |
|---|---|
| 備考 | 駐車場:空有 ■物件のご紹介 事前にご希望条件等を教えてくだされば、掲載物件以外の周辺物件情報も 多数ご紹介が可能です。お問い合わせメールに箇条書きでかまいませんので (お探しのエリア・ご予算・ご希望間取りなど)をお知らせください ———【住宅ローン事前無料相談会開催中!】——— ・日程:随時見学可能 ・開催時間:10:00〜 ■ご予約方法 ・受付: ・メールの場合:【資料請求】ボタンをクリックでお問い合わせください。 事前に鍵の手配や売主様とスケジュールの調整が必要な物件がございます お早目にご連絡をいただけるとご案内がスムーズです |
| 掲載期限日 | 2026/02/15 |
|---|---|
| 情報更新日 | 2026/02/01 |
| キッチン |
ガスコンロ / 浄水器・活水器 / IHコンロ / システムキッチン
|
|---|---|
| セキュリティ |
モニタ付インターホン
|
| 設備・サービス |
バルコニー / 温水洗浄便座 / シャワー付洗面化粧台 / 独立洗面台 / 追焚機能 / 床下収納 / 全居室収納
|
| 共用 |
駐車場あり
|
| 周辺 |
角地 / 平坦地
|
| その他 |
所有権 / 南向き / フローリング / 照明器具付
|
| ライフライン |
公営水道 / 下水 / 都市ガス
|
アクセス
中央線西八王子駅 徒歩7分
中央線八王子駅 徒歩29分
京王高尾線山田駅 徒歩29分
| 朝日土地建物株式会社 八王子支店 |
|
|---|
朝日土地建物株式会社 八王子支店の特徴
東京都・神奈川県・埼玉県に13店舗展開している朝日土地建物は、創業1985年・ご成約件数5万件の安心と実績で、お客様のお住まい探しを全力でサポートいたします!
20:00まで営業しておりますので、お仕事帰りにもお気軽にお立ち寄りください!
店内の棚にある住まい情報はご自由にご覧いただけます。
新築・中古・売地・マンションの種別、八王子、日野市などのエリア別に整理されています。
物件の詳細はスタッフにおたずね下さい。
「いくら位の住まいが購入できるか」「ローンの借入の年数はどのくらいか」「毎月の返済額はどのくらいになるか」などの目安を立て、お客様のご希望に沿ったプランのご提案をいたします。
キッズスペースも完備しておりますので、小さなお子様連れのお客様も安心してご来店いただけます。
ご興味を持たれた物件がございましたら現地へご案内いたします。住まい選びにはフィーリングも大切です。現地の空気や雰囲気を感じてみましょう。